 
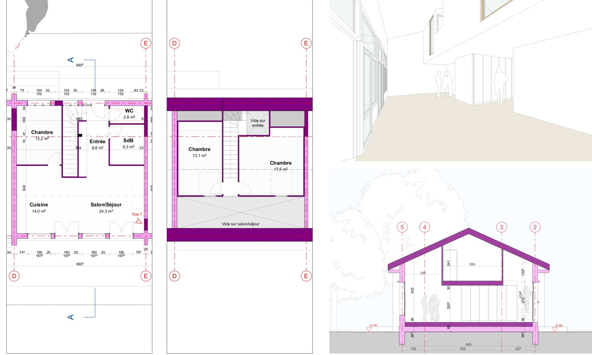
				La commune de Colmey-Flabeuville possède un bâtiment vide (ancienne école) que faire de ce patrimoine ? Le diagnostic permet d'étudier toutes les possibilités du bâti et du contexte urbain alentour. Différents scenarii sont proposés pour accompagner les élus dans leurs décisions.